ElektrIQ.Cz
chytré elektrikářské služby
+420 737 026 912
Hlavní
Služby
Pro domácnosti
Pro firmy
Pro developery, stavebníky & stavební firmy
Pro veřejný sektor
Pro SVJ, družstva a správcovské firmy
Termíny
Objednávka
Kontakty
Eshop
Menu stránek:
Hlavní
Služby
Pro domácnosti
Pro firmy
Pro developery, stavebníky & stavební firmy
Pro veřejný sektor
Pro SVJ, družstva a správcovské firmy
Termíny
Objednávka
Kontakty
Eshop
Katalog elektromateriálu
Domovní spínače a zásuvky
ABB
Alpha exclusive
AudioWorld
Busch-axcent
Classic
Decento
Ego-n
Element, Time
Future linear
Impuls
Levit
Mechanismy, strojky
Neo, Neo Tech
Reflex SI
Solo, Solo carat
Swing, SwingL
Tango
Vyšší krytí IP
Berker
BERKER ARSYS
BERKER B.3
BERKER B.7 GLAS
BERKER K.1/K.5
BERKER OSTATNÍ
BERKER PRISTROJE
BERKER Q.1/Q.3
BERKER R.1/R.3
BERKER S.1
BERKER S1930
BERKER TS
Bticino
Axolute
Living now
Living.Light
Ostatní Bticino
Gira
E2
E22
ESPIRIT
GIRA Flaschenschalt.
GIRA ostatní
PROFIL55
SCOLOR
STANDARD55
Legrand
Cariva
Céliane
Galea Life
Mosaic
Niloé
Niloé Step
Ostatní
Plexo
Valena
Valena Life
Niko
INTENSE
MYSTERIOUS
NIKO ostatní
NIKOBUS
ORIGINAL
PURE
Schneider
ASFORA
CEDAR
ELSO
MERTEN
MUREVA STYL
Nová UNICA
SEDNA
UNICA ALLEGRO
UNICA BASIC
UNICA CLASS
UNICA COLORS
UNICA PLUS
UNICA QUADRO
UNICA strojky
UNICA TOP
Elektromobilita
Nabíjecí stanice
Nabíjecí Wallboxy
Stojanové stanice AC
Stojanové stanice DC
Fotovoltaika
Konstrukce pro FVE
Hliníkové profily
Spojovací materiál
Střešní háky
Kabelový spojovací, izolační materiál
Kabelový spojovací materiál
Kabelová oka
Kabelové dutinky
Kabelové konektory
Kabelové spojky
Označování, smršťování, izolace
Bužírky, smršťovačky
Desky, folie
Izolační pásky
Kabelové štítky
Ostatní
Kabely a vodiče
Kabely ostatní
Nehořlavé
Ostatní
Kabely sdělovací
CYH, SCY, LSPR, MK
J-Y(ST)Y a ostatní
JYTY, JQTQ
Koaxiální
Optické
SYKFY
TCEPKxx a telefonní
UTP, FTP, STP
Kabely silové
1 YY, 1 AYY
AYKY, AYKYz
CMSM, CMFM
CYKY, CYKYLo, CYKYz
Gumové
Ostatní
PVC
Vodiče
CY
CYA
Ostatní
SIF, CSA
Modulové přístroje
Relé modulové
Časové relé
Impulsní, proudové
Relé paticové, do panelu, DPS, krabic
Časová
Impulsní, spínací
Patice k relé, přísl
Vypínače, signálky, zvonky
Signálky
Vypínače, přepínače
Zvonky a bzučáky
Obchodní zboží
Domovní spínače a zásuvky
Logus 90
Ostatní, 45x45
Šňůrové, nášlapné
Elektromobilita
Příslušenství
Fotovoltaika
Příslušenství
Rozvaděče pro FVE
Solární akumulátory
Solární kabely
Solární konektory
Solární měniče
Solární panely
Solární regulátory
Solární sestavy
Kabelový spojovací, izolační materiál
Kabelové spojky sady
Modulové přístroje
Elektroměry a měření
Instalační stykače
Jističe do 125A
Motorové spouštěče
Ostatní, příslušen.
Propojovací lišty
Proudové chrániče
Spínací hodiny
Svodiče přepětí
Obchodní zboží
Hromosvody
Rozvaděče a rozvodnice
Přípojnicové systémy
Příslušenství
Rozvaděče pojistkové
Sdělovací a zabezpečovací technika
Zabezpeč. technika
Záložní zdroje UPS
Zvonky a gongy
Svorky a svorkovnice
Konektory průmyslové
Pólové můstky
Svorkovnice rozbočné
Svorky krabicové
Svorky ostatní
Svorky propichovací
Svorky řadové a stož
Věněčky, přístrojové
Úložný materiál
Ostatní
Vývodky a záslepky
Vačkové a hlavní spínače
Příslušenství
Vačkové a hl.spínače
Ventilátory
Rekuperace
Vidlice, spojky a prodlužovací přívody
Přísluš., ostatní
Zásuvkové skříně
Pojistky, odpínače
Pojistkové odpínače a odpojovače
Nožové odpínače
Ostatní, přísluš.
Válcové odpínače
Pojistky
Autopojistky
D pojistky
Nožové pojistky
Ostatní pojistky
Trubičkové pojistky
Válcové pojistky
Příslušenství, spodky, hlavice
Ostatní, přísluš.
Pojistkové spodky
Rozvaděče a rozvodnice
Rozvaděče elektroměrové
Plastové, betonové
Plechové
Rozvaděče, skříně nad 63A
Monobloky plastové
Monobloky plechové
Rozvaděče přísluš.
Rozvaděče sestavy
Rozvodnice modulové do 125A
Oceloplastové rozv.
Plastové rozvodnice
Rozvodnice přísluš
Rozvodnice s krytím
Velkoobsahové rozv.
Úložný materiál
Do rozvaděčů
DIN lišty
Vylamovací žlaby
Vyplétací spirály
Elektroinstalační lišty a kanály
Kanály kovové
Kanály plastové
Lišty plastové
Sloupky a ostatní
Chráničky
Ohebné
Pevné
Krabice
Do betonu
Do SDK
Do zateplení
Do zdi
Na povrch
Podlahové, nábytkové systémy
Podlahové kanály
Podlahové krabice
Podlahové lišty
Trubky a hadice
Trubky Kovové
Trubky Ohebné plast
Trubky Příslušenství
Trubky Tuhé plast
Upevňovací materiál
Hmoždinky, šrouby
Příchytky, závěsy
Stahovací pásky
Svorky SONAP, lanové
Žlaby
Drátěné
Plechové
Příslušenství
Žebříky
Ventilátory
Bytové
Příslušenství
Ventilátory bytové
Průmyslové
Příslušenství
Ventilátory průmysl.
Vidlice, spojky a prodlužovací přívody
Vidlice Spojky Prodlužovací přívody 230V
Flexo šňůry
Prodluž přívody 230V
Prodlužovací bubny
Vidlice 230V
Zásuvkové adaptéry
Zásuvky, spojky 230V
Vidlice Spojky Přívodky 400V a jiné
Adaptéry, ost. 400V
Přívodky 400V
Spojky 400V
Vidlice 400V
Zásuvky 400V
Výkonové jističe a stykače
Výkonové jističe
Příslušenství
Výkonové jističe
Výkonové stykače a ministykače
Příslušenství
Výkonové stykače
Eshop
>
Obchodní zboží
::
Svítidla
::
Stožáry, výložníky
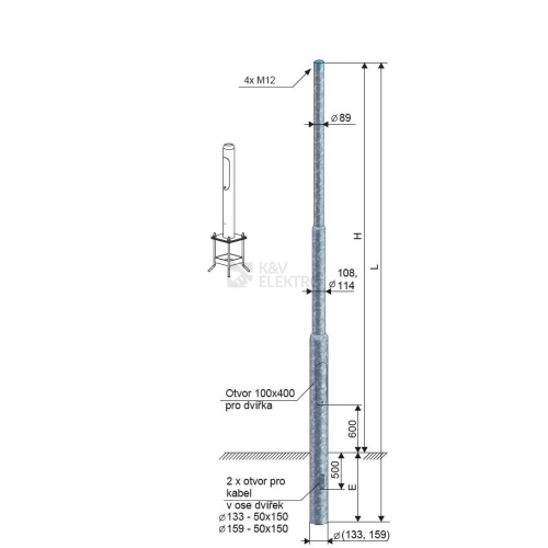
:: STOZAR VER. OSV. UZM 9-133/108/89 Z
STOZAR VER. OSV. UZM 9-133/108/89 Z
Objednací kód:
1290884
Značka:
Kooperativa
Dodavatelský kód:
12100-00070
EAN:
8595099965290
Jednotka:
ks
Cena bez DPH:
1,7 99,507,- Kč
Cena vč. DPH:
2,1 77,403,- Kč
V současné době položky z eshopu
JSOU DOSTUPNÉ POUZE PRO ZÁKAZNÍKY SLUŽEB
naší společnosti.